Naves Logísticas En Alquiler Sant Andreu de la Barca
SANT ANDREU DE LA BARCA
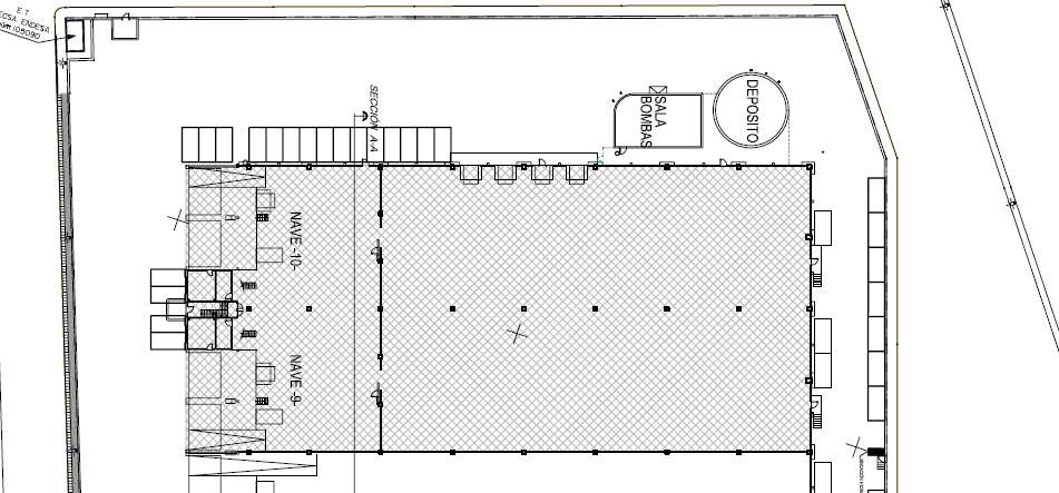
3.848 m²
Área Total
P.Baja: 3.510 m²
P.1: 338 m²
Alt. libre: 11 m
Muelles de Carga: 8 muelles
Nave logística de alta rotación con fachada a la A-2 en Sant Andreu de la Barca
Situada en el consolidado Polígono Industrial Nord-Est, en la primera corona logística de Barcelona, presentamos esta nave logística esquinera de 3.848 m². El activo destaca por su inmejorable visibilidad corporativa con fachada directa a la autovía A-2, una característica clave para empresas que buscan posicionamiento de marca.
Se trata de una instalación diseñada para operativas de alto rendimiento, con un excelente ratio de muelles de carga y cumplimiento estricto de la normativa contra incendios para actividades de riesgo medio.
Características Técnicas y Superficies
El inmueble cuenta con una estructura de hormigón y cubierta tipo Deck, ofreciendo las siguientes especificaciones:
-
Superficie Total: 3.848 m² construidos.
-
Distribución: 3.510 m² de almacén en planta baja y 338 m² de oficinas totalmente acondicionadas.
-
Altura: 10,50 metros de altura libre interior, permitiendo una gran capacidad de almacenamiento vertical.
-
Capacidad de Paletización: Posibilidad de instalar estanterías con capacidad para 6.000 palets.
-
Carga y Descarga: Equipamiento superior con 8 muelles de carga y 2 rampas de acceso rodado para entrada de vehículos al interior.
-
Seguridad y PCI: Sistema contra incendios completo con Rociadores Automáticos (Sprinklers) tipo ESFR, bocas de incendio (BIEs) y detección.
-
Instalaciones Adicionales: Recinto vallado con seguridad, control de accesos y plazas de aparcamiento privativas.
Ubicación y Conectividad
El activo goza de una ubicación estratégica para la distribución local y regional:
-
Acceso inmediato a la autovía A-2 (Madrid-Francia) y conexión rápida con la AP-7 y B-23.
-
A solo 16 km del centro de Barcelona y a 26 km del Aeropuerto del Prat.
Condiciones Económicas y Disponibilidad
-
Renta: 7,75 €/m²/mes (gastos e impuestos no incluidos).
-
Disponibilidad: Enero 2026.
CONTACTO
En Inicia Pro somos expertos en el sector industrial y logístico. Contacta con nosotros para agendar una visita técnica o recibir más información en www.iniciapro.com.








